欢迎来到星空网页版登录入口官网。咨询热线:400-8228-286
咨询热线:400-8228-286

400-8228-286

13707400505

智能立体车库系列

当前位置:星空(中国)>产品展示 > 智能立体车库系列

 
 

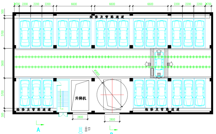
路边堆垛型

路边堆垛型 使用说明: 1、将车开上升降平台,然后人下车。 2、按操作按扭或刷卡,自动检测车辆是否到位。 3、升降装置开始动作,提升升降平台到指定位置。 4、到位后,纵向存取车装置开始动作,将车移到指定

咨询热线:

400-822-8286

13707400505

  •  收藏此商品
  • 分享到:
  • 产品详情
 


 





路边堆垛型
使用说明:
1、   将车开上升降平台,然后人下车。
2、   按操作按扭或刷卡,自动检测车辆是否到位。
3、   升降装置开始动作,提升升降平台到指定位置。
4、   到位后,纵向存取车装置开始动作,将车移到指定位置后停止。

机型说明:
1、   本机型全部为钢结构组件。
2、   适合装在小区、企事业单位,这些停车位不足但又没办法安装大型停车场的区域,或者装在车流量不是很大的道路两侧,一般道路两侧都设有绿化带,升降纵移机械式停车设备可以装在绿化带上,既能解决停车难问题,又不影响绿化。
3、   全自动PLC程序控制,操作简单,只须在操作盒上按上车位号,或刷卡,存取车装置将自动降到地面,司机将车开入车台即可。

 

安全设备 运行中警示装置 防坠装置
紧急停止装置 上下逾限保护装置
电流过负荷保护 纵移逾限保护装置
入口光电检测 上下定位开关
纵移定位开关 断电制动装置
超长检测 超高检测

联系我们

星空网页版登录入口

网址:www.newtarog.com

邮编:414300

服务热线:400-822-8286

销售热线:13707400505

电话:0730-3798128

传真:0730-3753717

邮箱:yuanruijx@163.com

总公司地址:湖南省临湘市三湾工业园

关注我们
  • 扫一扫,关注我们

  • 扫一扫,手机访问